환경그룹은 30여년간 축적된 노하우와 KOLAS 인증의 신뢰를 기반으로
소음·진동·건축음향·대책 및 평가 분야의 Total Engineering Solution을
제공합니다.
시험의뢰
공동주택 바닥충격음 차단구조 인정 및 검사기준
(국토교통부고시 제2023-494호) 제29조
(측정대상 공간 선정방법 등)
에 의거하여 단지별 총 세대수의 2%(특정 요건 해당 시 5%)를 무작위로 추출하여 현장 성능검사 대상 세대로 측정
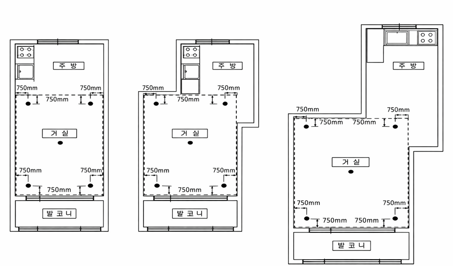
측정위치 선정
성적서 작업
「공동주택 바닥 충격음 차단구조인정 및 관리기준」(국토교통부고시)
| 22년 8월 4일 이전 사업승인 신청 현장 | 22년 8월 4일 이전 사업승인 신청 현장 | ||
|---|---|---|---|
| 등급 | 경량충격음 | 중량충격음 | |
| 1 | L′n,AW ≤ 43 | Li,Fmax,AW ≤ 40 | |
| 2 | 43 < L’n,AW ≤ 48 | 40 < L’i,Fmax,AW ≤ 43 | |
| 3 | 48 < L’n,AW ≤ 53 | 43 < L’i,Fmax,AW ≤ 47 | |
| 4 | 53 < L’n,AW ≤ 58 | 47 < L’i,Fmax,AW ≤ 50 | |

| 22년 8월 4일 이후 사업승인 신청 현장 | 22년 8월 4일 이후 사업승인 신청 현장 | ||
|---|---|---|---|
| 등급 | 경량충격음 | 중량충격음 | |
| 1 | L′n,AW ≤ 37 | Li,Fmax,AW ≤ 37 | |
| 2 | 37 < L’n,AW ≤ 41 | 37 < L’i,Fmax,AW ≤ 41 | |
| 3 | 41 < L’n,AW ≤ 45 | 41 < L’i,Fmax,AW ≤ 45 | |
| 4 | 45 < L’n,AW ≤ 49 | 45 < L’i,Fmax,AW ≤ 49 | |




「주택건설기준 등에 관한 규정 제9조」
| 대상 | 법적기준 등가소음도(Leq) | 사업계획 승인단계 법적기준에의 적합성판단 기준 |
사용검사단계 법적기준에의 적합성판단 기준 |
사용검사단계 측정조건 |
|
|---|---|---|---|---|---|
|
주간 (06:00~ 22:00) |
야간 (22:00 ~ 06:00) |
||||
| 실외 | 65dB(A) 미만 | 65dB(A) 미만 | 5층이하 | 5층이하 | 5층이하 |
| 1층과 5층의 실외소음도 65dB | 1층과 5층의 실외소음도를 합산하여 산술평균한 값이 65dB미만. | 1층(필로티포함)과 5층 바닥면으로 부터 12~15미터 높이에서동시 측정한다. | |||
| 6층 이상 | 6층 이상 | 6층 이상 | |||
| 각각의 실외소음65dB미만. | 실외소음도가 가장 높게 예측된 층을 포함하여 상하 격층으로 1개 층씩 총3개 총 65dB미만. | 실외소음도가 가장 높게 예측된 층을 포함하여 상하 격측으로 1개 층씩 총 3개 층 바닥면으로 부터 1.2 ~1.5m 높이에서 동시에 측정한다. | |||
| 공동주택이 「 국토의 계획 및 이용에 관한 법률」 제36조에 따른 도시지역(주택단지 면적이 30만제곱미터 미만인 경우로 한정한다)또는 「 소음·진동관리법」 제 27조에 따라 지정된 지역에 건축되는 경우로서 다음 각 호의 기준 모두 충족하는 경우에는 그 공동주택의 6층 이상인 부분에 대하여 본문을 적용하지 아니한다. | |||||
| 실내 | 45dB(A) 이하 | 45dB(A) 이하 | 각각의 실내소음 45dB이하. | 실내소음도가 가장 높게 예측된 층을 포함하여 상하 격층으로 1개 층 씩 총 3개 층 45dB이하. | 실내소음도가 가장 높게 예측된 층을 포함하여 상하 격층으로 1개 층 씩 총 3개층 바닥면으로 부터 1.2~1.5m
높이에서 동시에 측정한다. (측정지점 수 : 거실3개이상, 침실4개이상) |